Laatste van 4 moderne nieuwbouwwoningen met 3 slaapkamers en een dubbele carport, residentieel en landelijk gelegen te Maasmechelen-Boorsem

Te koop: Laatste van 4 moderne, energiezuinige nieuwbouwwoningen met warmtepomp, zonnepanelen en een dubbele carport, residentieel en landelijk gelegen te Maasmechelen-Boorsem.

Deze woning wordt instapklaar opgeleverd, inclusief vloeren, binnendeuren, keuken en sanitair (conform lastenboek). Afwerking nog te bepalen door koper, woningen zijn momenteel casco.
Mogelijkheid om een garage of tuinberging te plaatsen.
Energiezuinig: EPC-label A (E-peil E14), vloerverwarming met warmtepomp, zonnepanelen.

LOT 1 - VERKOCHT
LOT 2 - VERKOCHT
LOT 3 - TE KOOP: 5a 48ca
LOT 4 - VERKOCHT

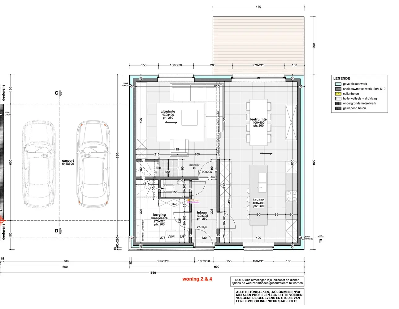
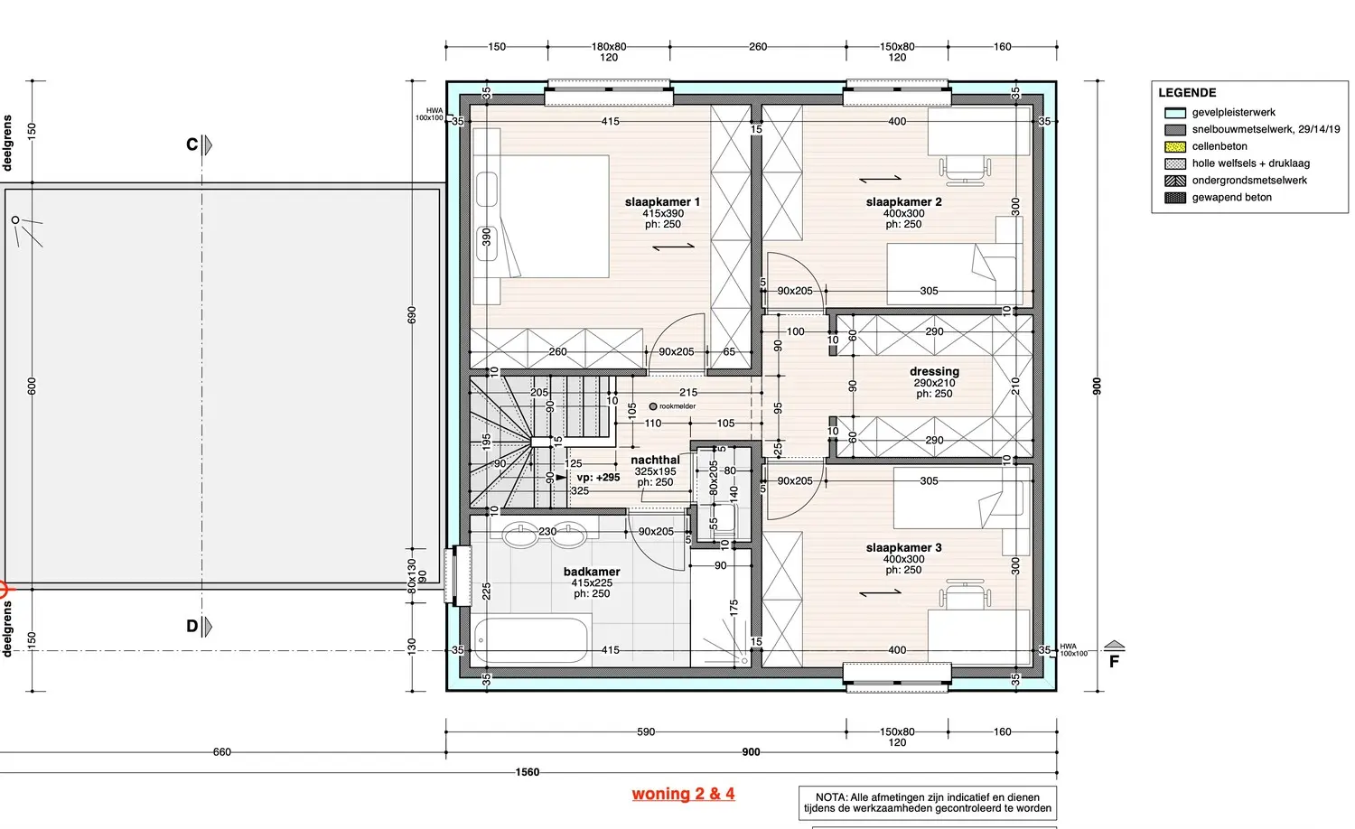
INDELING :
Begane grond 81 m² (vloerverwarming) :
- Inkomhal met gastentoilet (hangtoilet + wasbakje)
- Ruime L-vormige living (50 m²) met schuifraam naar de achtertuin
- Luxe eilandkeuken voorzien van keramische kookplaat, dampkap, oven, vaatwasser, spoelbak en koelkast
- Berging (2,75 x 2,25) met wasmachine-aansluiting en meterkast
- Carport voor 2 wagens 

Verdieping 81 m² :
- Luxe badkamer voorzien van ligbad, douche, meubel met 2 wastafels en spiegel
- Separaat toilet (hangtoilet + wasbakje)
- 3 Slaapkamers (16 m², 12 m² en 12 m²)
- Dressingruimte

Oplevering conform lastenboek (zie downloads) :
- binnenmuren behangklaar gepleisterd
- plafonds voorzien van spuitpleister
- inclusief vloeren, keukenopstelling, badkamer (ligbad, douche en dubbele wastafel) en 2 wc's naar keuze, conform budget voorzien in lastenboek
- houten trap

Extra's : warmtepomp, vloerverwarming (begane grond en badkamer), regenwaterput 5.000 ltr, pvc kozijnen met isolerende beglazing, ventilatiesysteem D, 2460Wp zonnepanelen

Prijs : € 387.000,- excl onderstaande kosten, pas te betalen bij akte
Bijkomende kosten : eventueel meerwerken, tuinaanleg, notariskosten, registratierecht à 12% op grondprijs (€ 100.000,-), btw à 21% op constructiewaarde (€ 287.000,-), aansluitingskosten riolering/water/elektra, kosten opmeting en verkaveling
Oplevering : 4 à 5 maanden na ondertekening verkoopovereenkomst
 

€387.000
3746003319000046079_Scherm­afbeelding 2024-11-26 om 15.10.09.jpg

Details

Bewoonbare oppervlakte162 m²
Perceelsoppervlakte582 m²
Aantal slaapkamers1
Aantal badkamers1
Garages0 wagens
Kadastraal inkomen€ 0
Bouwjaar2.024
RenovatiejaarNiet beschikbaar
Bampstraat 43 ,
3631 Boorsem
Beschikbaar: november 2024Vanaf het eerste contact tot de afronding staan we naast je. We begeleiden bezichtiging, onderhandeling en administratie, zodat je altijd weet waar je staat en wat de volgende stap is.
3746003319000046073_23056_maasmechelen_afd7_SectieA_455A_opmetings_afpalingsplan_73008-10223_Pagina_1 kopie.jpg
3746003319000046068_DSC_0843.jpg
3746003319000046080_Scherm­afbeelding 2024-11-26 om 15.18.03.jpg
3746003319000046070_01.jpg
3746003319000046072_IMG_2218n.jpg
3746003319000046074_dji_fly_20241128_101654_0618_1732789596899_photo.JPG
3746003319000046071_02.jpg
3746003319000046077_DSC_0858.jpg
3746003319000046076_DSC_0852.jpg
3746003319000046075_DSC_0864.jpg
3746003319000046069_DSC_0838.jpg
3746003319000046078_Scherm­afbeelding 2024-11-26 om 15.11.35.jpg
3746003319000046073_23056_maasmechelen_afd7_SectieA_455A_opmetings_afpalingsplan_73008-10223_Pagina_1 kopie.jpg
3746003319000046068_DSC_0843.jpg
3746003319000046080_Scherm­afbeelding 2024-11-26 om 15.18.03.jpg
3746003319000046070_01.jpg
3746003319000046072_IMG_2218n.jpg
3746003319000046074_dji_fly_20241128_101654_0618_1732789596899_photo.JPG
3746003319000046071_02.jpg
3746003319000046077_DSC_0858.jpg
3746003319000046076_DSC_0852.jpg
3746003319000046075_DSC_0864.jpg
3746003319000046069_DSC_0838.jpg
3746003319000046078_Scherm­afbeelding 2024-11-26 om 15.11.35.jpg
3746003319000046073_23056_maasmechelen_afd7_SectieA_455A_opmetings_afpalingsplan_73008-10223_Pagina_1 kopie.jpg
3746003319000046068_DSC_0843.jpg
3746003319000046080_Scherm­afbeelding 2024-11-26 om 15.18.03.jpg
3746003319000046070_01.jpg
3746003319000046072_IMG_2218n.jpg
3746003319000046074_dji_fly_20241128_101654_0618_1732789596899_photo.JPG
3746003319000046071_02.jpg
3746003319000046077_DSC_0858.jpg
3746003319000046076_DSC_0852.jpg
3746003319000046075_DSC_0864.jpg
3746003319000046069_DSC_0838.jpg
3746003319000046078_Scherm­afbeelding 2024-11-26 om 15.11.35.jpg
3746003319000046073_23056_maasmechelen_afd7_SectieA_455A_opmetings_afpalingsplan_73008-10223_Pagina_1 kopie.jpg
3746003319000046068_DSC_0843.jpg
3746003319000046080_Scherm­afbeelding 2024-11-26 om 15.18.03.jpg
3746003319000046070_01.jpg
3746003319000046072_IMG_2218n.jpg
3746003319000046074_dji_fly_20241128_101654_0618_1732789596899_photo.JPG
3746003319000046071_02.jpg
3746003319000046077_DSC_0858.jpg
3746003319000046076_DSC_0852.jpg
3746003319000046075_DSC_0864.jpg
3746003319000046069_DSC_0838.jpg
3746003319000046078_Scherm­afbeelding 2024-11-26 om 15.11.35.jpg
3746003319000046073_23056_maasmechelen_afd7_SectieA_455A_opmetings_afpalingsplan_73008-10223_Pagina_1 kopie.jpg
3746003319000046068_DSC_0843.jpg
3746003319000046080_Scherm­afbeelding 2024-11-26 om 15.18.03.jpg
3746003319000046070_01.jpg
3746003319000046072_IMG_2218n.jpg
3746003319000046074_dji_fly_20241128_101654_0618_1732789596899_photo.JPG
3746003319000046071_02.jpg
3746003319000046077_DSC_0858.jpg
3746003319000046076_DSC_0852.jpg
3746003319000046075_DSC_0864.jpg
3746003319000046069_DSC_0838.jpg
3746003319000046078_Scherm­afbeelding 2024-11-26 om 15.11.35.jpg
3746003319000046073_23056_maasmechelen_afd7_SectieA_455A_opmetings_afpalingsplan_73008-10223_Pagina_1 kopie.jpg
3746003319000046068_DSC_0843.jpg
3746003319000046080_Scherm­afbeelding 2024-11-26 om 15.18.03.jpg
3746003319000046070_01.jpg
3746003319000046072_IMG_2218n.jpg
3746003319000046074_dji_fly_20241128_101654_0618_1732789596899_photo.JPG
3746003319000046071_02.jpg
3746003319000046077_DSC_0858.jpg
3746003319000046076_DSC_0852.jpg
3746003319000046075_DSC_0864.jpg
3746003319000046069_DSC_0838.jpg
3746003319000046078_Scherm­afbeelding 2024-11-26 om 15.11.35.jpg

Bijlagen